JÁDROMODUL AM102/1120 pro suchou výstavbu
Související produkty
Detailní popis produktu
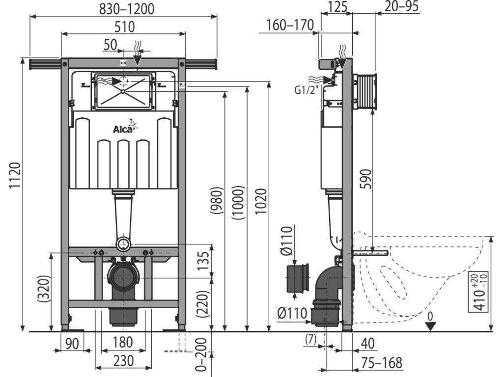
AM102/1120 JádromodulPředstěnový instalační systém určený pro suchou instalaci (především při rekonstrukci bytových jader)Použití:- pro instalaci do dřevostaveb- pro instalaci mezi dvě stěny- pro montáž závěsného WC s připojovací roztečí 180 mm nebo 230 mm- pro rekonstrukce bytových jader- pro tloušťku podlah 0-200 mm- pro závěsné WCTento inovovaný předstěnový instalační systém ALCA s kódovým označením AM102/1120 Jádromodul nahrazuje modelovou řadu A102/1200 Jádromodul. Instalace těchto systému je nyní rychlejší a k jejich montáži vám nyní postačí pouze jeden klíč.Vlastnosti:- duální splachování, nezávisle nastavitelné s hygienickou rezervou- kompatibilní se všemi ovládacími tlačítky Alcaplast- konstrukce polystyrenové izolace zabraňuje rosení na povrchu nádržky a tlumí prostup vibrací z nádržky do stavební konstrukce- kryt servisního otvoru zjednodušuje montáž a brání pronikání vlhkosti a nečistot- materiál nosné konstrukce: kov ošetřený práškovou barvou- montážní hloubka nastavitelná v rozmezí 20-95 mm- možnost vestavby oddáleného nebo senzorového splachování- nádržka je vyrobena z jednoho kusu, čímž je zaručena 100% nepropustnost- nainstalovaný systém se zaklopí sádrokartonovými deskami a nejsou potřeba žádné přídavné vyztužující ani kotvící prvky- nastavitelné kotvící výsuvné nohy s brzdou v rozmezí 0-200 mm- posuvný mechanismus držáku odpadu v osmi polohách ve vzdálenosti 0-93 mm- příprava na připojení držáku s DG1/2" přechodem pro bidetovací sedátka a spršky- přívod vody zezadu/shora uprostřed- rohový ventil s možností na napojení na potrubní systém Mepla- servisní práce bez použití nářadí- stavební hloubka 125 mm- viditelné označení nivelace a středové rysky- zatížení přenáší do bočních stěn rozpěrná traverza stavitelná v rozsahu 830-1200 mmTechnické parametry:Doporučený rozsah tlaku vody: 0,3 – 0,5 MPaFunkční rozsah tlaku vody: 0,05 – 0,8 MPaHygienická rezerva: 3 lMalé spláchnutí: 2,5 – 3,5 lObjem vody v nádržce: 9 lPřipojení vody zezadu nebo shora montážními otvory: G1/2 "Standardní nastavení malého spláchnutí: 3 lStandardní nastavení velkého spláchnutí: 6 lVelké spláchnutí: 6 – 9 lZátěžová zkouška: 400 kgDoplňkové parametry
| Kategorie: | Moduly pro závěsné WC |
|---|---|
| EAN: | 8595580550004 |
| Kód produktu: | AM102/1120 |
Buďte první, kdo napíše příspěvek k této položce.
Přidat komentář
